Αναβάθμιση και Εκσυγχρονισμός του Βασιλικού Θεάτρου Θεσσαλονίκης
μελέτη σκοπιμότητος και αρχιτεκτονική προμελέτη / για τη στέγαση της Νέας Σκηνής του Κρατικού Θεάτρου Βορείου Ελλάδος
ΑΝΑΘΕΤΗΣ:
Oργανισμός Πολιτιστική Πρωτεύουσα της Ευρώπης Θεσσαλονίκη 1997
ΑΡΧΙΤΕΚΤOΝΙΚΗ ΜΕΛΕΤΗ:
Γ. Αθανασόπουλος, Λ. Παπαδόπουλος, Γ. Παπακώστας
ΣΥΝΕΡΓΑΤΕΣ:
Ι. Βλάχος, αρχιτέκτων, Ν. Μπάρκας, ακουστικολόγος
ΣΤΑΤΙΚΗ ΜΕΛΕΤΗ:
Π. Κρεμέζης
Η/Μ ΜΕΛΕΤΗ:
Δ. Σακιζλής, Ε. Σεφερτζής
ΣΥΜΒOΥΛOΙ:
Α. Βέττας, Β. Παπαβασιλείου
ΣΥΜΜΕΤΟΧΕΣ - ΔΗΜΟΣΙΕΥΣΕΙΣ:
γ΄έκθεση αρχιτεκτονικού έργου του ΣΑΘ
ΠΡOΓΡΑΜΜΑ:
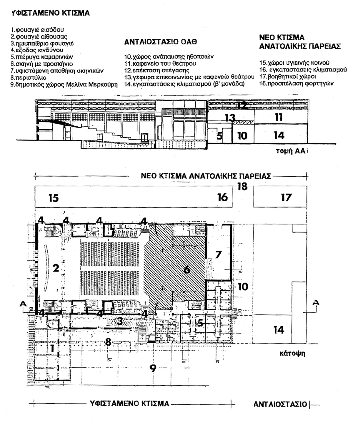
Προτείνεται ο ανασχεδιασμός του Βασιλικού Θεάτρου Βορείου Ελλάδος (Αρχιτέκτονες Κ. Δοξιάδης και Αrthur Skeppers), σε Νέα σκηνή του Κρατικού Θεάτρου Βορείου Ελλάδος. Ζητείται να διερευνηθούν οι πολλαπές δυνατότητες μετασχηματισμού του θεάτρου με την εξασφάλιση της αντίστοιχης τεχνολογικά επίκαιρης υποδομής, καθώς και οι δυνατότητες αναβάθμισης και εκσυγχρονισμού των βοηθητικών και των δημοσίων χώρων του θεάτρου, με την ενσωμάτωση του προσκείμενου αντλιοστασίου του O.Α.Θ.
ΑΡΧΙΤΕΚΤOΝΙΚΗ ΠΡOΤΑΣΗ:
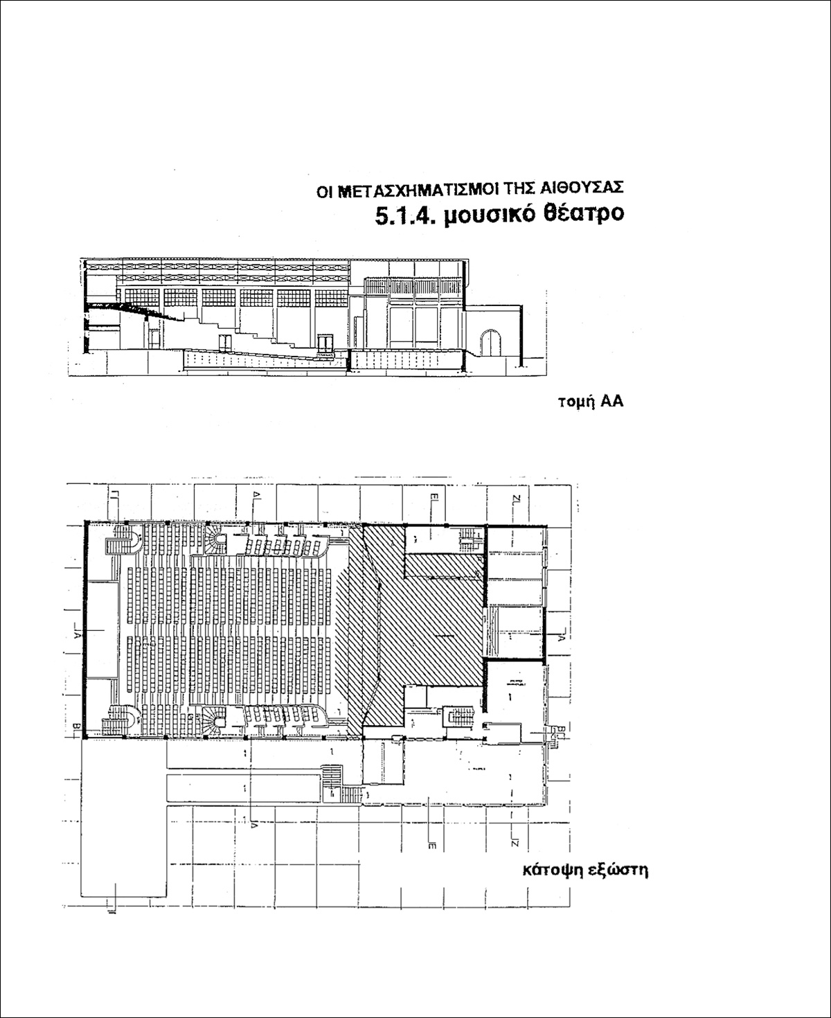
Αναγνωρίζονται τα προβλήματα του υφισταμένου κτιρίου τα οποία οφείλονται στον αρχικό σχεδιασμό (μειονεκτική οπτική χάραξη, ανεπαρκής ηχοπροστασία, περιορισμένοι δημόσιοι χώροι, ανεπάρκεια εργαστηρίων κατασκευής σκηνικών, ανεπαρκής σχεδιασμός πυρασφαλείας) και στην ηλικιακή απαρχαίωση του κτιρίου του θεάτρου (αλλοιώσεις στον φέροντα οργανισμό, απουσία μηχανολογικών εγκαταστάσεων θέρμανσης και κλιματισμού, ατελής ή παρωχημένη θεατρική τεχνολογία) και σχεδιάζεται η αναίρεσή τους. Προτείνεται μία πολλαπλώς ευέλικτη αίθουσα η οποία υπερβαίνει το περιεχόμενο της συμβατικής θεατρικής τυπολογίας και εγγράφεται στην παράδοση των μεταβλητών θεατρικών χώρων. Η αίθουσα μετασχηματίζεται με την αντίστοιχη τεχνολογία (με ανελκυόμενες κατά ζώνη βαθμίδες με ανεξάρτητα κουμπωτά καθίσματα ή με πτυσσόμενες κερκιδωτές διατάξεις με ενσωματωμένα καθίσματα) σε τέσσερις διακριτές μορφές θεάτρου: 1. Θέατρο προσκηνίου (ιταλική σκηνή, ενοποίηση πλατείας και εξώστη σε ενιαία κλίση, 780 θέσεων), 2. Θέατρο ανοικτής σκηνής (η προηγούμενη εκδοχή με εκτεταμένο προσκήνιο για θέατρο και χοροθέατρο, 612 θέσεων), 3. Κυκλικό θέατρο (με σκηνή στο κέντρο του θεατρικού χώρου και σε τμήμα της πλατείας της πρώτης εκδοχής, ενώ βαθμιδωτή διάταξη καθισμάτων καταλαμβάνει το χώρο της ιταλικής σκηνής, 762 θέσεων) και 4. Μουσικό θέατρο (αναπαραγωγή του σχεδίου Δοξιάδη-Skeppers, θέατρο βαριετέ και άλλων εκδηλώσεων, 732 θέσεις) Η πρόταση παρακολουθεί τον τεχνολογικό εξπρεσσιονισμό και τη μορφολογική λιτότητα του αρχικού σχεδίου Δοξιάδη- Skeppers (διατήρηση των ζευκτών και των παραθύρων, επιλογή, μορφών, υλικών, κατασκευών και εξοπλισμού εργαστηριακού χαρακτήρα) και επιδιώκει την κατασκευή δομών χώρου που να ανταποκρίνονται στη ζητούμενη ατμόσφαιρα ενός εργαστηρίου θεατρικής αναζήτησης.
ΑΝΑΘΕΤΗΣ:
Oργανισμός Πολιτιστική Πρωτεύουσα της Ευρώπης Θεσσαλονίκη 1997
ΑΡΧΙΤΕΚΤOΝΙΚΗ ΜΕΛΕΤΗ:
Γ. Αθανασόπουλος, Λ. Παπαδόπουλος, Γ. Παπακώστας
ΣΥΝΕΡΓΑΤΕΣ:
Ι. Βλάχος, αρχιτέκτων, Ν. Μπάρκας, ακουστικολόγος
ΣΤΑΤΙΚΗ ΜΕΛΕΤΗ:
Π. Κρεμέζης
Η/Μ ΜΕΛΕΤΗ:
Δ. Σακιζλής, Ε. Σεφερτζής
ΣΥΜΒOΥΛOΙ:
Α. Βέττας, Β. Παπαβασιλείου
ΣΥΜΜΕΤΟΧΕΣ - ΔΗΜΟΣΙΕΥΣΕΙΣ:
γ΄έκθεση αρχιτεκτονικού έργου του ΣΑΘ
ΠΡOΓΡΑΜΜΑ:
Προτείνεται ο ανασχεδιασμός του Βασιλικού Θεάτρου Βορείου Ελλάδος (Αρχιτέκτονες Κ. Δοξιάδης και Αrthur Skeppers), σε Νέα σκηνή του Κρατικού Θεάτρου Βορείου Ελλάδος. Ζητείται να διερευνηθούν οι πολλαπές δυνατότητες μετασχηματισμού του θεάτρου με την εξασφάλιση της αντίστοιχης τεχνολογικά επίκαιρης υποδομής, καθώς και οι δυνατότητες αναβάθμισης και εκσυγχρονισμού των βοηθητικών και των δημοσίων χώρων του θεάτρου, με την ενσωμάτωση του προσκείμενου αντλιοστασίου του O.Α.Θ.
ΑΡΧΙΤΕΚΤOΝΙΚΗ ΠΡOΤΑΣΗ:
Αναγνωρίζονται τα προβλήματα του υφισταμένου κτιρίου τα οποία οφείλονται στον αρχικό σχεδιασμό (μειονεκτική οπτική χάραξη, ανεπαρκής ηχοπροστασία, περιορισμένοι δημόσιοι χώροι, ανεπάρκεια εργαστηρίων κατασκευής σκηνικών, ανεπαρκής σχεδιασμός πυρασφαλείας) και στην ηλικιακή απαρχαίωση του κτιρίου του θεάτρου (αλλοιώσεις στον φέροντα οργανισμό, απουσία μηχανολογικών εγκαταστάσεων θέρμανσης και κλιματισμού, ατελής ή παρωχημένη θεατρική τεχνολογία) και σχεδιάζεται η αναίρεσή τους. Προτείνεται μία πολλαπλώς ευέλικτη αίθουσα η οποία υπερβαίνει το περιεχόμενο της συμβατικής θεατρικής τυπολογίας και εγγράφεται στην παράδοση των μεταβλητών θεατρικών χώρων. Η αίθουσα μετασχηματίζεται με την αντίστοιχη τεχνολογία (με ανελκυόμενες κατά ζώνη βαθμίδες με ανεξάρτητα κουμπωτά καθίσματα ή με πτυσσόμενες κερκιδωτές διατάξεις με ενσωματωμένα καθίσματα) σε τέσσερις διακριτές μορφές θεάτρου: 1. Θέατρο προσκηνίου (ιταλική σκηνή, ενοποίηση πλατείας και εξώστη σε ενιαία κλίση, 780 θέσεων), 2. Θέατρο ανοικτής σκηνής (η προηγούμενη εκδοχή με εκτεταμένο προσκήνιο για θέατρο και χοροθέατρο, 612 θέσεων), 3. Κυκλικό θέατρο (με σκηνή στο κέντρο του θεατρικού χώρου και σε τμήμα της πλατείας της πρώτης εκδοχής, ενώ βαθμιδωτή διάταξη καθισμάτων καταλαμβάνει το χώρο της ιταλικής σκηνής, 762 θέσεων) και 4. Μουσικό θέατρο (αναπαραγωγή του σχεδίου Δοξιάδη-Skeppers, θέατρο βαριετέ και άλλων εκδηλώσεων, 732 θέσεις) Η πρόταση παρακολουθεί τον τεχνολογικό εξπρεσσιονισμό και τη μορφολογική λιτότητα του αρχικού σχεδίου Δοξιάδη- Skeppers (διατήρηση των ζευκτών και των παραθύρων, επιλογή, μορφών, υλικών, κατασκευών και εξοπλισμού εργαστηριακού χαρακτήρα) και επιδιώκει την κατασκευή δομών χώρου που να ανταποκρίνονται στη ζητούμενη ατμόσφαιρα ενός εργαστηρίου θεατρικής αναζήτησης.