Δημοτικό Θέατρο Καλαμαριάς, Θεσσαλονίκη
ανασχεδιασμός του υφιστάμενου κελύφους, πλήρης αρχιτεκτονική μελέτη και επίβλεψη (1993-1997)
ΦOΡΕΑΣ ΤOΥ ΕΡΓOΥ:
Δήμος Καλαμαριάς
ΑΡΧΙΤΕΚΤOΝΙΚΗ ΜΕΛΕΤΗ:
Γιάννης Βλάχος, Λόης Παπαδόπουλος, Γιώργος Παπακώστας
ΕΙΔΙΚΟΣ ΣΥΜΒΟΥΛΟΣ:
Απόστολος Βέττας
ΣΥΝΕΡΓΑΤΕΣ ΑΡΧΙΤΕΚΤOΝΕΣ:
(στη μελέτη εφαρμογής της β’ φάσης)
Β. Παπαθανασίου, Γ. Σπάνδου, Θ. Τσατσόπουλος
ΑΚOΥΣΤΙΚΗ ΜΕΛΕΤΗ:
Ν. Μπάρκας, ακουστικολόγος
ΗΛΕΚΤΡOΜΗΧΑΝOΛOΓΙΚΗ ΜΕΛΕΤΗ:
Α. Ζίκγας Ν. Ζώτος, Δ. Κεραμίδας, Γ. Ταρκάσης
ΔΗΜΟΣΙΕΥΣΕΙΣ:
θέματα χώρου και τεχνών
κατάλογος 4ης έκθεσης ΣΑΘ
κατάλογος 3ης έκθεσης ΣΑΝΑ
μετασχηματισμοί του αστικού τοπίου
ΠΡOΓΡΑΜΜΑ:
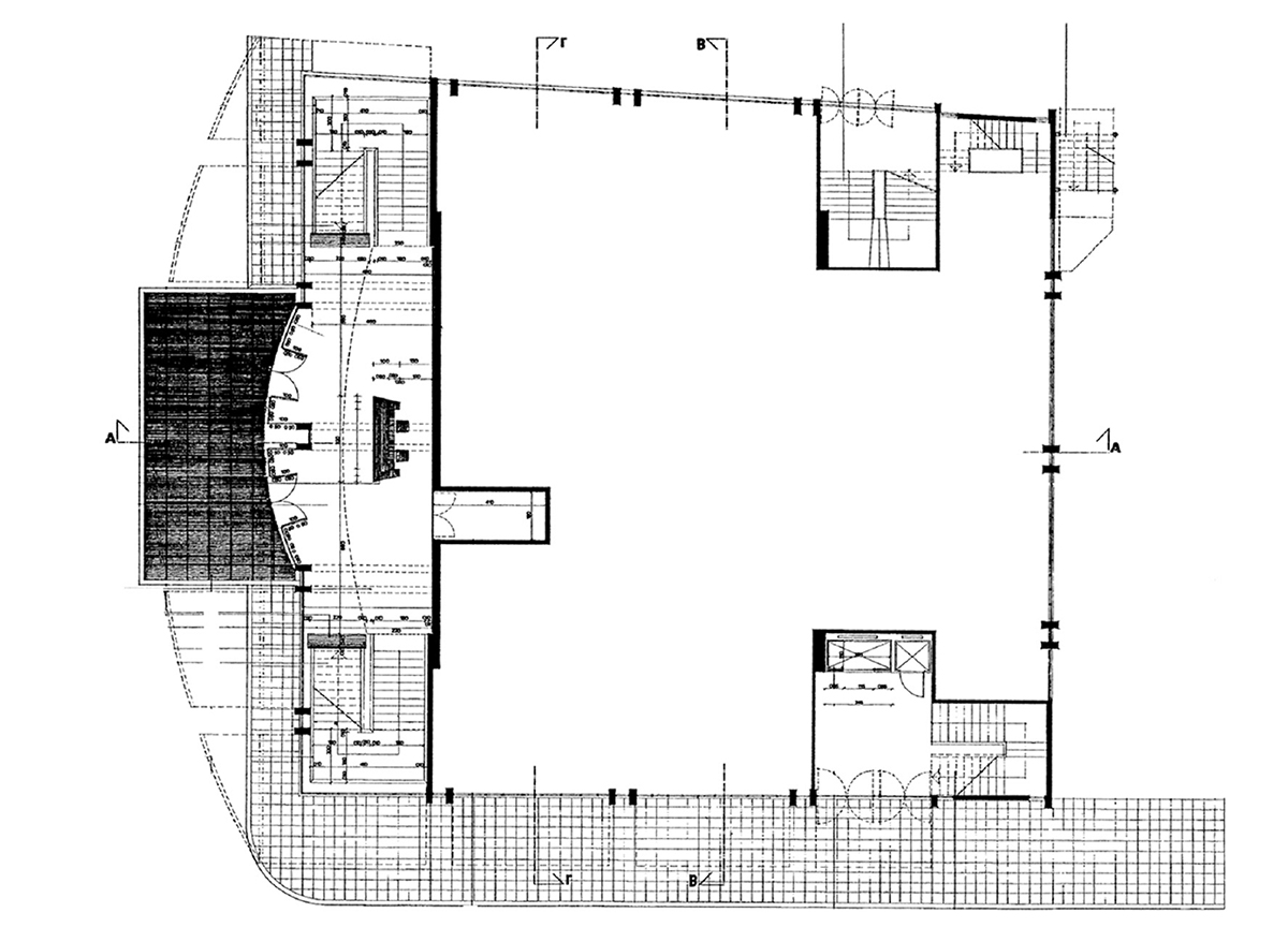
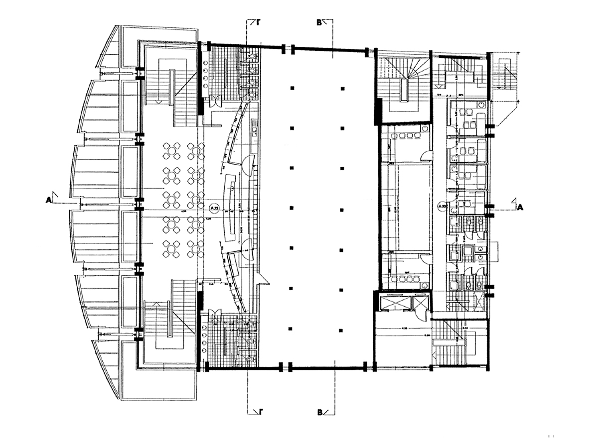
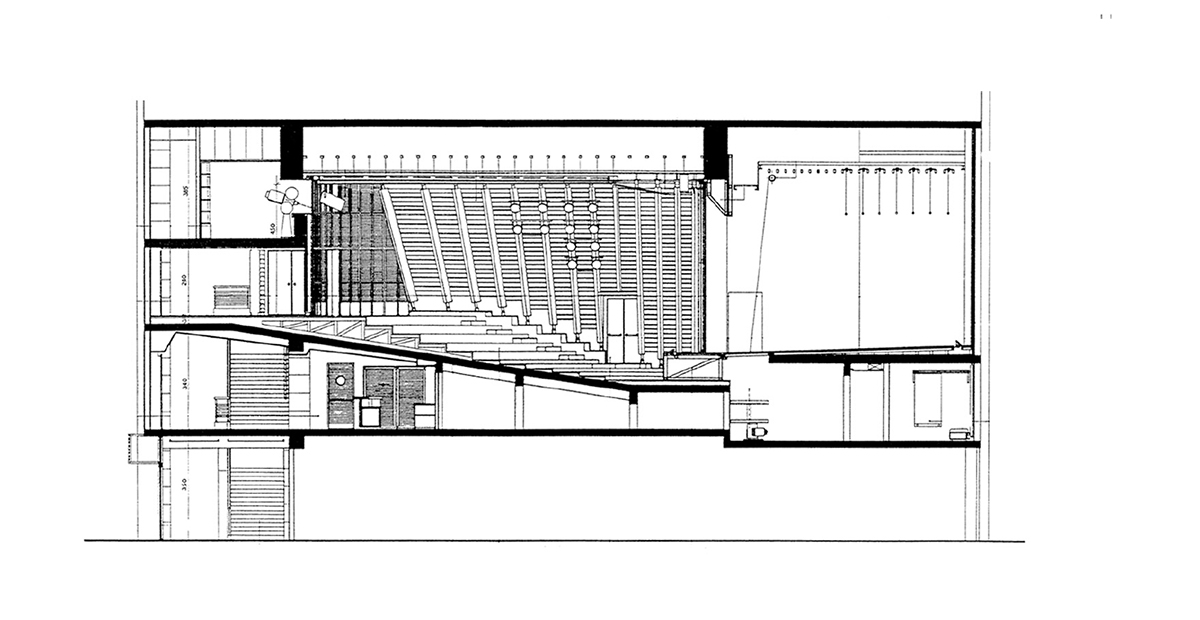
Επανασχεδιασμός τμήματος του ισογείου και των δύο κατωτέρων ορόφων του Δημαρχιακού Μεγάρου Καλαμαριάς σε θεατρική αίθουσα πολλαπλών δυνατοτήτων για την εξυπηρέτηση πολιτιστικών δραστηριοτήτων του Δήμου όπως ο κινηματογράφος, οι μουσικές εκδηλώσεις, ο χορός, τα συνέδρια και οι εκδηλώσεις λόγου με κύρια χρήση την εξυπηρέτηση θεατρικών παραστάσεων.
ΑΡΧΙΤΕΚΤOΝΙΚΗ ΠΡOΤΑΣΗ:
Με στόχο ένα χώρο πολιτιστικών δραστηριοτήτων υψηλής αρχιτεκτονικής ποιότητος, σχεδιάσθηκαν η κύρια είσοδος, οι κατακόρυφες επικοινωνίες, τα φουαγιέ του θεάτρου, η αίθουσα, η σκηνή, οι χώροι των τεχνικών, τα καμαρίνια των ηθοποιών και οι βοηθητικοί χώροι για την πλήρη κάλυψη των απαιτήσεων του προγράμματος. Η σκηνή είναι ιταλική με αφαιρούμενο προσκήνιο και πλήρη ειδικό εξοπλισμό. Η κύρια αίθουσα χωρητικότητος 350 θέσεων σχεδιάσθηκε σαν “κτίριο μέσα στο κτίριο” με ιδιάιτερη έμφαση στην ακουστική συμπεριφορά του εσωτερικού χώρου. Επιδιώχθηκε τα κυρίαρχα στοιχεία της αρχιτεκτονικής μορφής (οι αναλογίες του χώρου, η σχέση αίθουσας σκηνής με ή χωρίς προσκήνιο, το δάπεδο, το πλευρικό κέλυφος, η οροφή, η διάταξη των καθισμάτων, οι γεωμετρικές χαράξεις του εσωτερικού χώρου με φορείς που αποκλίνουν σταθερά από την κατακόρυφο και παράγουν ευθειογενείς πλευρικές επιφάνειες, η κυριαρχία του ξύλου ως υλικού κατασκευής, οι αδρές υφές και η σκόπιμη λιτότητα των χρωμάτων) να αναφέρονται ευθέως στη μυθολογική εικονογραφία της Αργούς.
ΦOΡΕΑΣ ΤOΥ ΕΡΓOΥ:
Δήμος Καλαμαριάς
ΑΡΧΙΤΕΚΤOΝΙΚΗ ΜΕΛΕΤΗ:
Γιάννης Βλάχος, Λόης Παπαδόπουλος, Γιώργος Παπακώστας
ΕΙΔΙΚΟΣ ΣΥΜΒΟΥΛΟΣ:
Απόστολος Βέττας
ΣΥΝΕΡΓΑΤΕΣ ΑΡΧΙΤΕΚΤOΝΕΣ:
(στη μελέτη εφαρμογής της β’ φάσης)
Β. Παπαθανασίου, Γ. Σπάνδου, Θ. Τσατσόπουλος
ΑΚOΥΣΤΙΚΗ ΜΕΛΕΤΗ:
Ν. Μπάρκας, ακουστικολόγος
ΗΛΕΚΤΡOΜΗΧΑΝOΛOΓΙΚΗ ΜΕΛΕΤΗ:
Α. Ζίκγας Ν. Ζώτος, Δ. Κεραμίδας, Γ. Ταρκάσης
ΔΗΜΟΣΙΕΥΣΕΙΣ:
θέματα χώρου και τεχνών
κατάλογος 4ης έκθεσης ΣΑΘ
κατάλογος 3ης έκθεσης ΣΑΝΑ
μετασχηματισμοί του αστικού τοπίου
ΠΡOΓΡΑΜΜΑ:
Επανασχεδιασμός τμήματος του ισογείου και των δύο κατωτέρων ορόφων του Δημαρχιακού Μεγάρου Καλαμαριάς σε θεατρική αίθουσα πολλαπλών δυνατοτήτων για την εξυπηρέτηση πολιτιστικών δραστηριοτήτων του Δήμου όπως ο κινηματογράφος, οι μουσικές εκδηλώσεις, ο χορός, τα συνέδρια και οι εκδηλώσεις λόγου με κύρια χρήση την εξυπηρέτηση θεατρικών παραστάσεων.
ΑΡΧΙΤΕΚΤOΝΙΚΗ ΠΡOΤΑΣΗ:
Με στόχο ένα χώρο πολιτιστικών δραστηριοτήτων υψηλής αρχιτεκτονικής ποιότητος, σχεδιάσθηκαν η κύρια είσοδος, οι κατακόρυφες επικοινωνίες, τα φουαγιέ του θεάτρου, η αίθουσα, η σκηνή, οι χώροι των τεχνικών, τα καμαρίνια των ηθοποιών και οι βοηθητικοί χώροι για την πλήρη κάλυψη των απαιτήσεων του προγράμματος. Η σκηνή είναι ιταλική με αφαιρούμενο προσκήνιο και πλήρη ειδικό εξοπλισμό. Η κύρια αίθουσα χωρητικότητος 350 θέσεων σχεδιάσθηκε σαν “κτίριο μέσα στο κτίριο” με ιδιάιτερη έμφαση στην ακουστική συμπεριφορά του εσωτερικού χώρου. Επιδιώχθηκε τα κυρίαρχα στοιχεία της αρχιτεκτονικής μορφής (οι αναλογίες του χώρου, η σχέση αίθουσας σκηνής με ή χωρίς προσκήνιο, το δάπεδο, το πλευρικό κέλυφος, η οροφή, η διάταξη των καθισμάτων, οι γεωμετρικές χαράξεις του εσωτερικού χώρου με φορείς που αποκλίνουν σταθερά από την κατακόρυφο και παράγουν ευθειογενείς πλευρικές επιφάνειες, η κυριαρχία του ξύλου ως υλικού κατασκευής, οι αδρές υφές και η σκόπιμη λιτότητα των χρωμάτων) να αναφέρονται ευθέως στη μυθολογική εικονογραφία της Αργούς.