Εκπαιδευτικό Κέντρο Επαγγελματικής Κατάρτισης, Μυτιλήνη
συμμετοχή σε πανελλήνιο μειοδοτικό διαγωνισμό / προώθηση σε οριστική μελέτη της υφιστάμενης προμελέτης του ΟΑΕΔ - μελετητής: Γραφείο Α. Τομπάζη
ΦOΡΕΑΣ ΤOΥ ΕΡΓOΥ:
Oργανισμός Απασχόλησης Εργατικού Δυναμικού
ΑΝΑΘΕΣΗ ΜΕΛΕΤΗΣ:
Εφαρμογή Α.Τ.Ε., Ευρωδομή Α.Τ.Ε
ΑΡΧΙΤΕΚΤOΝΙΚΗ ΜΕΛΕΤΗ:
Α. Βασιλειάδης, Γιάννης Βλάχος, Λόης Παπαδόπουλος, Γιώργος Παπακώστας, Ν. Παπαμίχος, Α. Πρίντζιος, Ε. Σταύρακα
ΣΥΜΒOΥΛOΙ:
Ν. Μπάρκας Ακουστικολόγος, Δ. Φωκάς Αρχιτέκτων Τοπίου
ΣΤΑΤΙΚΗ ΜΕΛΕΤΗ:
Μ. Φωτιάδης, Βάσις Σ.Υ.Σ.Μ. Α.Ε
ΗΛΕΚΤΡOΜΗΧΑΝOΛOΓΙΚΗ ΜΕΛΕΤΗ:
Μ.Α.Κ.Τ.Ε. Ε.Π.Ε
ΠΡOΓΡΑΜΜΑ:
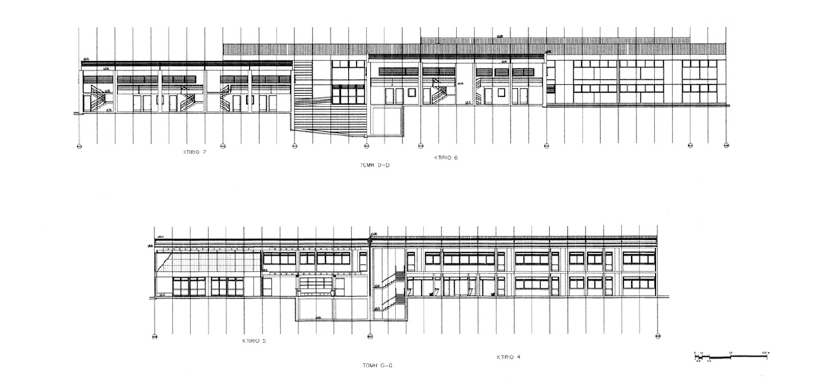
Κέντρο Τεχνικής και Επαγγελματικής Κατάρτισης (Κτίριο Διοίκησης, Κατοικία Διευθυντού, Μαθητική Εστία, Εστιατόριο, Αίθουσες Διδασκαλίας, Αίθουσα Πολλαπλών Χρήσεων, Ερ-γαστήρια, Παιδικός Σταθμός και Αθλητικές Εγκαταστάσεις), σε ελαφρώς επικλινές οικόπεδο 31.500 τ.μ στην περιοχή των ελαιώνων επί της οδού Μυτιλήνης-Θερμής.
ΑΡΧΙΤΕΚΤOΝΙΚΗ ΠΡOΤΑΣΗ:
Το συγκρότημα οργανώνεται γύρω από μία κεντρική ορθογωνική πλατεία, κλειστή από τις τρεις πλευρές και ανοιχτή προς τη νοτιοδυτική πλευρά προς το τοπίο των ελαιώνων και προς τις Αθλητικές Εγκαταστάσειςτου εκπαιδευτηρίου. Η κεντρική πλατεία του συγκροτήματος, τόπος της ημιυπαίθριας σχολικής ζωής, περιγράφεται από το κτίρια της Διοίκησης (παράλληλα στο δρόμο πρόσβασης) και τα κτίρια της Μαθητικής Εστίας και των Αιθουσών Διδασκαλίας (κάθετα στο δρόμο πρόσβασης). Το κτίριο της Διοίκησης επικοινωνεί με το κτίριο της Μαθητικής Εστίας μέσω του κτιρίου του Εστιατορίου ενώ το κτίριο Διοίκησης επικοινωνεί με το κτίριο των Αιθουσών Διδασκαλίας μέσω του κτιρίου των Πολλαπλών Χρήσεων. Το δίδυμο κτίριο των Εργαστηρίων διατάσσεται παράλληλα, σε μικρή απόσταση και σε άμεση σχέση με το κτίριο των Αιθουσών Διδασκαλίας, ενώ η Κατοικία του Διευθυντού και ο Παιδικός Σταθμός επιλύονται ως περίοπτα κτίρια. Τόσο στο σχεδιασμό των κτιρίων όσο και του περιβάλλοντος χώρου, μεσω χειρισμών που παραπέμπουν σε εικόνες αστικής ή προαστιακής κατοικίας, επιχειρείται να αρθεί ο ιδρυματικός χαρακτήρας του συγκροτήματος. Έτσι επιδιώχθηκε η επίλυση της κεντρικής πλατείας να γίνει με όρους “αστικότητας” και “αρχιτεκτονικής της πόλης” ενώ του περιβάλλοντος χώρου με όρους αρχιτεκτονικής τοπίου. Ειδικότερα η αρχιτεκτονική επεξεργασία των κτιρίων στην περίμετρο της πλατείας αποσκοπεί ταυτοχρόνως στην απόδοση ποικιλίας (γεωμετρία, αναλογίες, υλικά, χρώματα) αλλά και στην έμφαση των κοινών στοιχείων (φέρων οργανισμός, ισόγειες και διώροφες στοές, εμφανείς κατακόρυφες επικοινωνίες). Αντίθετα η αρχιτεκτονική των περίοπτων κτιρίων εμφαίνει τη σχέση των αρχιτεκτονικών μορφών με την περιβάλλουσα φύση.
ΦOΡΕΑΣ ΤOΥ ΕΡΓOΥ:
Oργανισμός Απασχόλησης Εργατικού Δυναμικού
ΑΝΑΘΕΣΗ ΜΕΛΕΤΗΣ:
Εφαρμογή Α.Τ.Ε., Ευρωδομή Α.Τ.Ε
ΑΡΧΙΤΕΚΤOΝΙΚΗ ΜΕΛΕΤΗ:
Α. Βασιλειάδης, Γιάννης Βλάχος, Λόης Παπαδόπουλος, Γιώργος Παπακώστας, Ν. Παπαμίχος, Α. Πρίντζιος, Ε. Σταύρακα
ΣΥΜΒOΥΛOΙ:
Ν. Μπάρκας Ακουστικολόγος, Δ. Φωκάς Αρχιτέκτων Τοπίου
ΣΤΑΤΙΚΗ ΜΕΛΕΤΗ:
Μ. Φωτιάδης, Βάσις Σ.Υ.Σ.Μ. Α.Ε
ΗΛΕΚΤΡOΜΗΧΑΝOΛOΓΙΚΗ ΜΕΛΕΤΗ:
Μ.Α.Κ.Τ.Ε. Ε.Π.Ε
ΠΡOΓΡΑΜΜΑ:
Κέντρο Τεχνικής και Επαγγελματικής Κατάρτισης (Κτίριο Διοίκησης, Κατοικία Διευθυντού, Μαθητική Εστία, Εστιατόριο, Αίθουσες Διδασκαλίας, Αίθουσα Πολλαπλών Χρήσεων, Ερ-γαστήρια, Παιδικός Σταθμός και Αθλητικές Εγκαταστάσεις), σε ελαφρώς επικλινές οικόπεδο 31.500 τ.μ στην περιοχή των ελαιώνων επί της οδού Μυτιλήνης-Θερμής.
ΑΡΧΙΤΕΚΤOΝΙΚΗ ΠΡOΤΑΣΗ:
Το συγκρότημα οργανώνεται γύρω από μία κεντρική ορθογωνική πλατεία, κλειστή από τις τρεις πλευρές και ανοιχτή προς τη νοτιοδυτική πλευρά προς το τοπίο των ελαιώνων και προς τις Αθλητικές Εγκαταστάσειςτου εκπαιδευτηρίου. Η κεντρική πλατεία του συγκροτήματος, τόπος της ημιυπαίθριας σχολικής ζωής, περιγράφεται από το κτίρια της Διοίκησης (παράλληλα στο δρόμο πρόσβασης) και τα κτίρια της Μαθητικής Εστίας και των Αιθουσών Διδασκαλίας (κάθετα στο δρόμο πρόσβασης). Το κτίριο της Διοίκησης επικοινωνεί με το κτίριο της Μαθητικής Εστίας μέσω του κτιρίου του Εστιατορίου ενώ το κτίριο Διοίκησης επικοινωνεί με το κτίριο των Αιθουσών Διδασκαλίας μέσω του κτιρίου των Πολλαπλών Χρήσεων. Το δίδυμο κτίριο των Εργαστηρίων διατάσσεται παράλληλα, σε μικρή απόσταση και σε άμεση σχέση με το κτίριο των Αιθουσών Διδασκαλίας, ενώ η Κατοικία του Διευθυντού και ο Παιδικός Σταθμός επιλύονται ως περίοπτα κτίρια. Τόσο στο σχεδιασμό των κτιρίων όσο και του περιβάλλοντος χώρου, μεσω χειρισμών που παραπέμπουν σε εικόνες αστικής ή προαστιακής κατοικίας, επιχειρείται να αρθεί ο ιδρυματικός χαρακτήρας του συγκροτήματος. Έτσι επιδιώχθηκε η επίλυση της κεντρικής πλατείας να γίνει με όρους “αστικότητας” και “αρχιτεκτονικής της πόλης” ενώ του περιβάλλοντος χώρου με όρους αρχιτεκτονικής τοπίου. Ειδικότερα η αρχιτεκτονική επεξεργασία των κτιρίων στην περίμετρο της πλατείας αποσκοπεί ταυτοχρόνως στην απόδοση ποικιλίας (γεωμετρία, αναλογίες, υλικά, χρώματα) αλλά και στην έμφαση των κοινών στοιχείων (φέρων οργανισμός, ισόγειες και διώροφες στοές, εμφανείς κατακόρυφες επικοινωνίες). Αντίθετα η αρχιτεκτονική των περίοπτων κτιρίων εμφαίνει τη σχέση των αρχιτεκτονικών μορφών με την περιβάλλουσα φύση.