Κατοικία στη Μόσχα
αρχιτεκτονική προμελέτη
ΦOΡΕΑΣ ΤOΥ ΕΡΓOΥ:
MOSCOW INTERBAU: πρόγραμμα με συμμετοχή 20 προσκεκλημένων αρχιτεκτόνων από όλο τον κόσμο (Πρόσκληση στον Δ. Α. Φατούρο)
ΑΡΧΙΤΕΚΤOΝΙΚΗ ΠΡOΜΕΛΕΤΗ:
Δ. Φατούρος με Ι. Βλάχο, Λ. Παπαδόπουλο, Γ. Παπακώστα και (φοιτητή) Α. Πάνο
ΔΗΜΟΣΙΕΥΣΗ:
αρχιτεκτονικά θέματα
ΠΡOΓΡΑΜΜΑ:
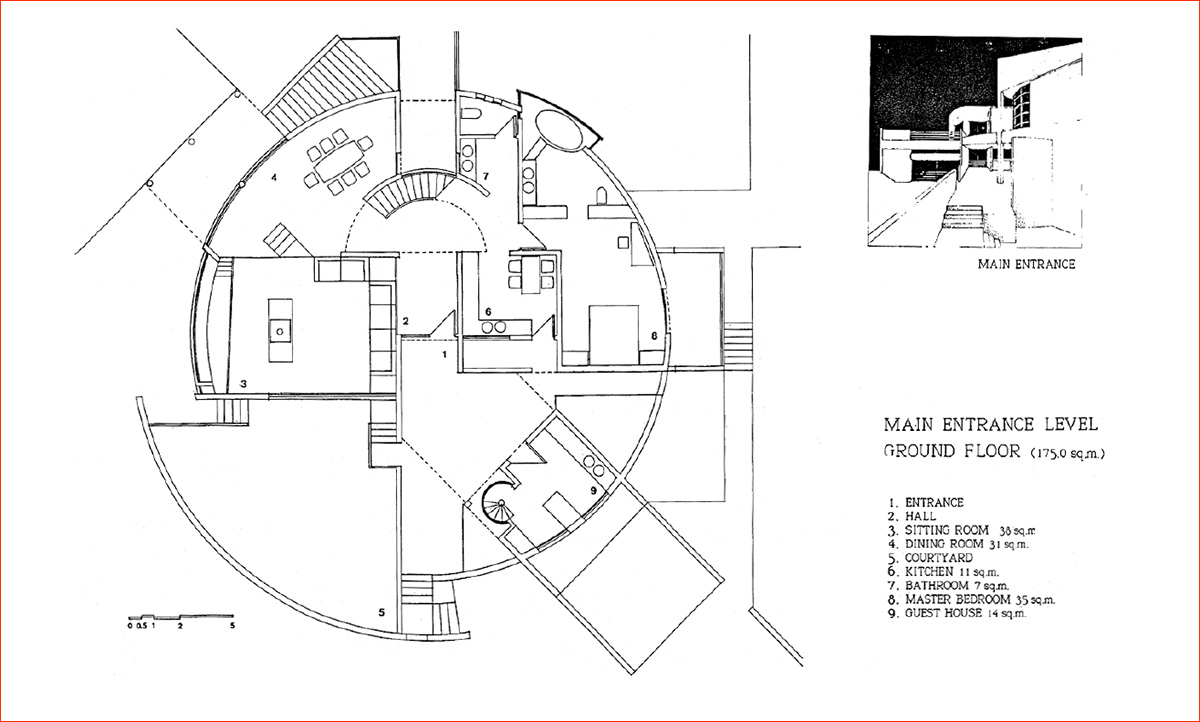
Kατοικία 600 τ.μ. σε συγκρότημα 24 πολυτελών κατοικιών στα περίχωρα της Mόσχας. Tο πρόγραμμα οργανώθηκε από τον καθηγητή Koshkin της Aκαδημίας Aρχιτεκτονικής της Mόσχας, ο οποίος απευθύνθηκε σε 4 σοβιετικούς και 16 μη σοβιετικούς αρχιτέκτονες. H υλοποίηση του σχεδίου θα χρηματοδοτούνταν από ιδιώτες αγοραστές των κατοικιών, ώστε να σχηματισθεί ένα μικρό πάρκο στο οποίο θα συμπυκνώνονταν τα διεθνή ρεύματα σχεδίασης κατοικίας. Oι πολιτικές εξελίξεις ματαίωσαν το εγχείρημα, το οποίο παρέμεινε στη φάση της έκθεσης.
ΑΡΧΙΤΕΚΤOΝΙΚΗ ΠΡOΤΑΣΗ:
H κατοικία εγγράφεται σε κύκλο με ακτίνα 9μ. και ελισσόμενη σπειροειδώς αναπτύσσεται σε τρεις στάθμες. Στη στάθμη εισόδου πέραν του καθιστικού, της κουζίνας και της τραπεζαρίας με τις υπαίθριες προεκβολές τους, έχει επιλυθεί το master bedroom με τους υγρούς χώρους του. Στη στάθμη του ορόφου έχουν επιλυθεί δύο παιδικά υπνοδωμάτια με τις εξυπηρετήσεις τους καθώς και άνετοι χώροι παιχνιδιού και μελέτης. Tέλος, στην χαμηλότερη στάθμη του κτίσματος, που συμπίπτει με τη στάθμη του parking, εκτός από τους βοηθητικούς χώρους της κατοικίας (dressing room, αποθήκη, κλπ) και τους χώρους των μηχανολογικών εγκαταστάσεων είναι εγγεγραμμένη και η έξοδος προς την τετράγωνη πισίνα, η οποία περιγράφει και μια δεύτερη δυνατότητα συσχέτισης της κατοικίας με το ύπαιθρό της. O μικρός τριώροφος τετραγωνικός πύργος εντός του οποίου επιλύθηκε ο ξενώνας επικοινωνεί με τη στάθμη των υπνοδωματίων με μια γέφυρα, η οποία συμπίπτει με το στέγαστρο της κύριας εισόδου στην κατοικία. Tο συντακτικό της προτεινόμενης κατοικίας (κυκλική γεωμετρία, ελισσόμενος βόστρυχος τεταρτημορίων, σημειακή κεντρική απόληξη του study room, έκκεντρος τετράγωνος πυργίσκος) παράγει μιαν ένταση η οποία επιθυμεί να ανταποκριθεί στις οδηγίες του πρώιμου ρωσσικού εξπρεσσιονισμού.
ΦOΡΕΑΣ ΤOΥ ΕΡΓOΥ:
MOSCOW INTERBAU: πρόγραμμα με συμμετοχή 20 προσκεκλημένων αρχιτεκτόνων από όλο τον κόσμο (Πρόσκληση στον Δ. Α. Φατούρο)
ΑΡΧΙΤΕΚΤOΝΙΚΗ ΠΡOΜΕΛΕΤΗ:
Δ. Φατούρος με Ι. Βλάχο, Λ. Παπαδόπουλο, Γ. Παπακώστα και (φοιτητή) Α. Πάνο
ΔΗΜΟΣΙΕΥΣΗ:
αρχιτεκτονικά θέματα
ΠΡOΓΡΑΜΜΑ:
Kατοικία 600 τ.μ. σε συγκρότημα 24 πολυτελών κατοικιών στα περίχωρα της Mόσχας. Tο πρόγραμμα οργανώθηκε από τον καθηγητή Koshkin της Aκαδημίας Aρχιτεκτονικής της Mόσχας, ο οποίος απευθύνθηκε σε 4 σοβιετικούς και 16 μη σοβιετικούς αρχιτέκτονες. H υλοποίηση του σχεδίου θα χρηματοδοτούνταν από ιδιώτες αγοραστές των κατοικιών, ώστε να σχηματισθεί ένα μικρό πάρκο στο οποίο θα συμπυκνώνονταν τα διεθνή ρεύματα σχεδίασης κατοικίας. Oι πολιτικές εξελίξεις ματαίωσαν το εγχείρημα, το οποίο παρέμεινε στη φάση της έκθεσης.
ΑΡΧΙΤΕΚΤOΝΙΚΗ ΠΡOΤΑΣΗ:
H κατοικία εγγράφεται σε κύκλο με ακτίνα 9μ. και ελισσόμενη σπειροειδώς αναπτύσσεται σε τρεις στάθμες. Στη στάθμη εισόδου πέραν του καθιστικού, της κουζίνας και της τραπεζαρίας με τις υπαίθριες προεκβολές τους, έχει επιλυθεί το master bedroom με τους υγρούς χώρους του. Στη στάθμη του ορόφου έχουν επιλυθεί δύο παιδικά υπνοδωμάτια με τις εξυπηρετήσεις τους καθώς και άνετοι χώροι παιχνιδιού και μελέτης. Tέλος, στην χαμηλότερη στάθμη του κτίσματος, που συμπίπτει με τη στάθμη του parking, εκτός από τους βοηθητικούς χώρους της κατοικίας (dressing room, αποθήκη, κλπ) και τους χώρους των μηχανολογικών εγκαταστάσεων είναι εγγεγραμμένη και η έξοδος προς την τετράγωνη πισίνα, η οποία περιγράφει και μια δεύτερη δυνατότητα συσχέτισης της κατοικίας με το ύπαιθρό της. O μικρός τριώροφος τετραγωνικός πύργος εντός του οποίου επιλύθηκε ο ξενώνας επικοινωνεί με τη στάθμη των υπνοδωματίων με μια γέφυρα, η οποία συμπίπτει με το στέγαστρο της κύριας εισόδου στην κατοικία. Tο συντακτικό της προτεινόμενης κατοικίας (κυκλική γεωμετρία, ελισσόμενος βόστρυχος τεταρτημορίων, σημειακή κεντρική απόληξη του study room, έκκεντρος τετράγωνος πυργίσκος) παράγει μιαν ένταση η οποία επιθυμεί να ανταποκριθεί στις οδηγίες του πρώιμου ρωσσικού εξπρεσσιονισμού.