Κέντρο Επαγγελματικής Κατάρτισης Ενηλίκων (ΚΕΚΑΤΕ) Κοζάνης
προώθηση της αρχιτεκτονικής προμελέτης του Γραφείου ΤΕΤΡΑΚΤΥΣ σε Αρχιτεκτονικη Μελετη και Μελετη εφαρμογής
ΦΟΡΕΑΣ ΤΟΥ ΕΡΓΟΥ:
OΑΕΔ
ΑΝΑΘΕΣΗ ΜΕΛΕΤΗΣ:
γραφείο ΤΕΤΡΑΚΤΥΣ
ΑΡΧΙΤΕΚΤOΝΙΚΗ ΜΕΛΕΤΗ:
ΤΕΤΡΑΚΤΥΣ και Μ. Νομικός, Λόης Παπαδόπουλος, Γιώργος Παπακώστας
ΠΡOΓΡΑΜΜΑ:
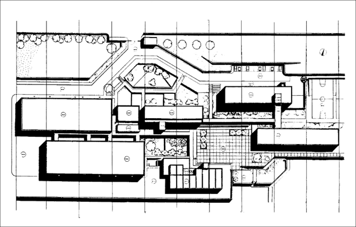
Κέντρο Επαγγελματικής Κατάρτισης Ενηλίκων σε οικοπεδική έκταση του OΑΕΔ έξω από την Κοζάνη
ΑΡΧΙΤΕΚΤOΝΙΚΗ ΠΡOΤΑΣΗ:
Oι επιμέρους λειτουργίες του Κτιριολογικού Προγράμματος (διοίκηση, κατοικία διευθυντού, ιατρείο, οικοτροφείο, εκπαίδευση, εστίαση, αναψυχή) επιλύονται σε διακεκριμένεςκτιριακές μονάδες που διατάσσονται γύρω από ένα κεντρικό υπαίθριο χώρο και επικοινωνούν μέσω στεγασμένων διαδρόμων. Το συγκρότημα εξυπηρετείται από ένα περιμετρικό δρόμο, σε μια διεύρυνση του οποίου έχει επιλυθεί χώρος στάθμευσης των αυτοκινήτων του προσωπικού.
Ειδικότερα, στο ισόγειο του κτιρίου εισόδου έχουν επιλυθεί τα γραφεία της διοίκησης με το φουαγιέ τους (200 τ.μ.) και το ιατρείο (60 τ.μ.), ενώ στον όροφο, με ανεξάρτητη είσοδο, το οικοτροφείο (200 τ.μ.) και η κατοικία του διευθυντού (70 τ.μ.). Τα εργαστήρια επαγγελματικής κατάρτισης (1600 τ.μ.) έχουν επιλυθεί στους δίδυμους πρισματικούς όγκους της ανατολικής πλευράς του οικοπέδου του Κέντρου, ενώ η διώροφη πτέρυγα των αιθουσών διδασκαλίας (240 τ.μ.) διαμορφώνει τη βόρεια παρειά της κεντρικής πλατείας. Το νότιο όριο της πλατείας καταλαμβάνεται από το κτίριο του εστιατορίου και την αίθουσα πολλαπλών χρήσεων.
ΦΟΡΕΑΣ ΤΟΥ ΕΡΓΟΥ:
OΑΕΔ
ΑΝΑΘΕΣΗ ΜΕΛΕΤΗΣ:
γραφείο ΤΕΤΡΑΚΤΥΣ
ΑΡΧΙΤΕΚΤOΝΙΚΗ ΜΕΛΕΤΗ:
ΤΕΤΡΑΚΤΥΣ και Μ. Νομικός, Λόης Παπαδόπουλος, Γιώργος Παπακώστας
ΠΡOΓΡΑΜΜΑ:
Κέντρο Επαγγελματικής Κατάρτισης Ενηλίκων σε οικοπεδική έκταση του OΑΕΔ έξω από την Κοζάνη
ΑΡΧΙΤΕΚΤOΝΙΚΗ ΠΡOΤΑΣΗ:
Oι επιμέρους λειτουργίες του Κτιριολογικού Προγράμματος (διοίκηση, κατοικία διευθυντού, ιατρείο, οικοτροφείο, εκπαίδευση, εστίαση, αναψυχή) επιλύονται σε διακεκριμένεςκτιριακές μονάδες που διατάσσονται γύρω από ένα κεντρικό υπαίθριο χώρο και επικοινωνούν μέσω στεγασμένων διαδρόμων. Το συγκρότημα εξυπηρετείται από ένα περιμετρικό δρόμο, σε μια διεύρυνση του οποίου έχει επιλυθεί χώρος στάθμευσης των αυτοκινήτων του προσωπικού.
Ειδικότερα, στο ισόγειο του κτιρίου εισόδου έχουν επιλυθεί τα γραφεία της διοίκησης με το φουαγιέ τους (200 τ.μ.) και το ιατρείο (60 τ.μ.), ενώ στον όροφο, με ανεξάρτητη είσοδο, το οικοτροφείο (200 τ.μ.) και η κατοικία του διευθυντού (70 τ.μ.). Τα εργαστήρια επαγγελματικής κατάρτισης (1600 τ.μ.) έχουν επιλυθεί στους δίδυμους πρισματικούς όγκους της ανατολικής πλευράς του οικοπέδου του Κέντρου, ενώ η διώροφη πτέρυγα των αιθουσών διδασκαλίας (240 τ.μ.) διαμορφώνει τη βόρεια παρειά της κεντρικής πλατείας. Το νότιο όριο της πλατείας καταλαμβάνεται από το κτίριο του εστιατορίου και την αίθουσα πολλαπλών χρήσεων.