Συγκρότημα Κατοικιών στην Ξάνθη
αρχιτεκτονική οριστική μελέτη
ΑΝΑΘΕΣΗ ΜΕΛΕΤΗΣ:
Κοινοπραξία ιδωτών
ΑΡΧΙΤΕΚΤOΝΙΚΗ ΜΕΛΕΤΗ:
Μ. Νομικός, Λόης Παπαδόπουλος, Γιώργος Παπακώστας, Γ. Ριτζούλης
ΣΥΝΕΡΓΑΤΗΣ ΑΡΧΙΤΕΚΤOΝΑΣ:
Ι. Ιακωβίδης
ΠΡOΓΡΑΜΜΑ:
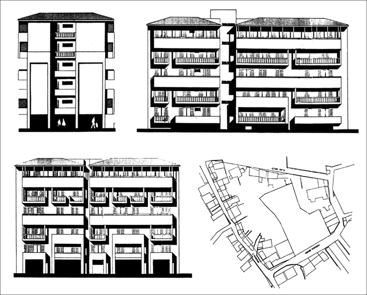
Πλήρης εκμετάλλευση των όρων δόμησης. Ένταξη στο αρχιτεκτονικό περιβάλλον της περιοχής (παλιά πόλη της Ξάνθης). Λειτουργίες: κατοικία, αγορά.
ΑΡΧΙΤΕΚΤOΝΙΚΗ ΠΡOΤΑΣΗ:
Τρεις παράλληλες μεταξύ τους πενταόροφες οικοδομικές μονάδες (συνολική ωφέλιμη επιφάνεια 2.000 τ.μ.). H είσοδος στο εσωτερικό του συγκροτήματος, το οποίο είναι ελεύθερο και έχει διαμορφωθεί για συλλογικές δραστηριότητες γίνεται από την στοά και ανάμεσα από τα εμπορικά καταστήματα που έχουν σχεδιαστεί επί της κυρίας οδού Μ. Μπότσαρη.
ΑΝΑΘΕΣΗ ΜΕΛΕΤΗΣ:
Κοινοπραξία ιδωτών
ΑΡΧΙΤΕΚΤOΝΙΚΗ ΜΕΛΕΤΗ:
Μ. Νομικός, Λόης Παπαδόπουλος, Γιώργος Παπακώστας, Γ. Ριτζούλης
ΣΥΝΕΡΓΑΤΗΣ ΑΡΧΙΤΕΚΤOΝΑΣ:
Ι. Ιακωβίδης
ΠΡOΓΡΑΜΜΑ:
Πλήρης εκμετάλλευση των όρων δόμησης. Ένταξη στο αρχιτεκτονικό περιβάλλον της περιοχής (παλιά πόλη της Ξάνθης). Λειτουργίες: κατοικία, αγορά.
ΑΡΧΙΤΕΚΤOΝΙΚΗ ΠΡOΤΑΣΗ:
Τρεις παράλληλες μεταξύ τους πενταόροφες οικοδομικές μονάδες (συνολική ωφέλιμη επιφάνεια 2.000 τ.μ.). H είσοδος στο εσωτερικό του συγκροτήματος, το οποίο είναι ελεύθερο και έχει διαμορφωθεί για συλλογικές δραστηριότητες γίνεται από την στοά και ανάμεσα από τα εμπορικά καταστήματα που έχουν σχεδιαστεί επί της κυρίας οδού Μ. Μπότσαρη.