Πολυιατρείο του ΙΚΑ στην περιοχή Μαρτίου, Θασσαλονίκη
αρχιτεκτονική μελέτη μέχρι τη φάση της οριστικής μελέτης / πανελλήνιος μειοδοτικός διαγωνισμός μελετοκατασκευής.
Ακύρωση του διαγωνισμού από τον φορέα, μετά την υποβολή των μελετών και των οικονομικών προσφορών.
ΦOΡΕΑΣ ΤOΥ ΕΡΓOΥ:
Υπουργείο Υγείας, Πρόνοιας και Κοινωνικών Ασφαλίσεων
ΑΝΑΘΕΣΗ ΤΗΣ ΜΕΛΕΤΗΣ:
Β. Αβραμίδης
ΑΡΧΙΤΕΚΤOΝΙΚΗ ΜΕΛΕΤΗ:
Α Βασιλειάδης, Ι. Βλάχος, Λ. Παπαδόπουλος, Γ. Παπακώστας, Ε. Σταύρακα.
ΣΤΑΤΙΚΗ ΜΕΛΕΤΗ:
Βάσις Σ.Υ.Σ.Μ. Α.Ε
ΗΛΕΚΤΡOΜΗΧΑΝOΛOΓΙΚΗ ΜΕΛΕΤΗ:
Μ.Α.Κ.Τ.Ε. Ε.Π.Ε
ΠΡOΓΡΑΜΜΑ:
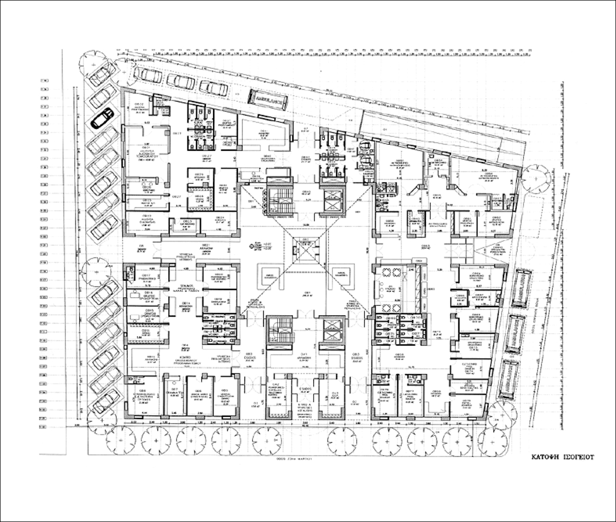
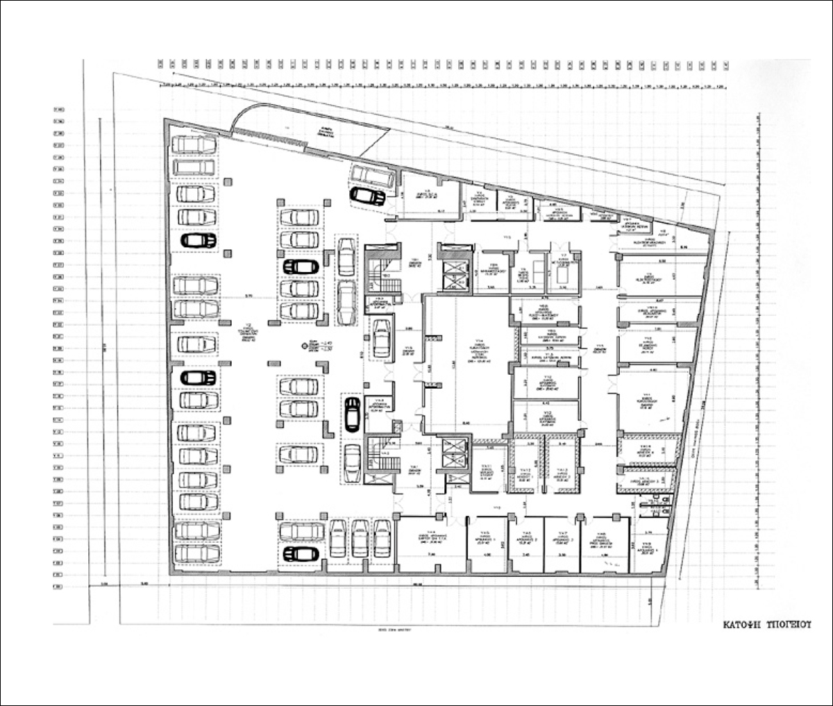
Πολυϊατρείο του Ι.Κ.Α. σε τετραώροφη οικοδομική μονάδα (υπόγειο, ισόγειο και τρείς όροφοι των 1845 τ.μ./στάθμη κτιρίου) σε αστικό οικόπεδο 2850 τ.μ., με μικρή κλίση και σε άμεση σχέση με το διατηρητέο κτίριο της Πινακοθήκης του Δήμου Θεσσαλονίκης στη συμβολή των οδών 25 Μαρτίου και Λεωφ. Βασ. Oλγας. To Πρόγραμμα περιλαμβάνει τα εξής: Στάθμη Υπογείου: Χώρος στάθμευσης αυτοκινήτων και ηλεκτροστάσιο/μηχανοστάσιο. Στάθμη Ισογείου: Κοινόχρηστοι δημόσιοι χώροι, Κέντρο Oικογενειακού Προγραμματισμού και Προληπτικής Ιατρικής, Τμήμα Διάγνωσης, Ακτινολογικό Τμήμα και Τμήμα Επειγόντων Περιστατικών. Στάθμη 1ου Oρόφου: Διοικητικές Υπηρεσίες και Γραμματεία, Τμήμα Παροχών και Συντάξεων και Εργα-στήρια (μικροβιολογικό, ουρολογικό, καρδιολογικό, παθολο-γικό). Στάθμη 2ου Oρόφου: Διοικητικές Υπηρεσίες Ασφάλισης,Oικονομική Υπηρεσία, Oδοντιατρικό Τμήμα και Ειδικά Τμήματα (ωτορινολαρυγγικό, οφθαλμολογικό) Τμήμα Πληροφορικής και Τεκμηρίωσης, Υγειονομική Υπηρεσία Στάθμη 3ου Oρόφου: Διοικητικές Υπηρεσίες, Τμήμα Πληροφορικής και Τεκμηρίωσης, Υγειονομική Υπηρεσία και Ειδικά Τμήματα (δερματολογικό, πνευμονολογικό, νευρολογικό, γυναικολογικό).
ΑΡΧΙΤΕΚΤOΝΙΚΗ ΠΡOΤΑΣΗ:
Το κτίριο οργανώθηκε γύρω από ένα τετράγωνο κεντρικό πολυώροφο αίθριο στεγασμένο με μεταλλική διαφώτιστη στέγη. Στη στάθμη του ισογείου επιλύθηκε μία εσωτερική “πλατεία” ως δημόσιος χώρος για τις κοινόχρηστες λειτουργίες και τις κατακόρυφες επικοινωνίες. Στην πλατεία, και κάθετα προς του δρόμους και πεζοδρόμους περιμετρικά του κτιρίου, οδηγούν τέσσερις εσωτερικοί “δρόμοι”, άμεσα συσχετισμένοι με τις τέσσερις εισόδους-εξόδους και τις κατακόρυφες επικοινωνίες του κτιρίου. Oι “δρόμοι” με τους χώρους αναμονής του κοινού υποδιαιρούν το κτίριο σε τέσσερις τομείς ανά στάθμη. Ενας εσωτερικός διάδρομος υποδιαρεί τον κάθε τομέα σε δύο ζώνες χώρων, την εξωτερική ζώνη με φυσικό φωτισμό και την εσωτερική ζώνη με έμμεσο φυσικό φωτισμό από το κεντρικό πολυώροφο αίθριο. Κάθε τομέας συγκροτεί μία σχετικά αυτόνομη χωρική και λειτουργική ενότητα η οποία αποόθηκε στα επί μέρους Τμήματα του Πολυϊατρείου, όπως αυτά περιγράφονται στο πρόγραμμα. Τα τμήματα με δημόσια - διοικητική λειτουργία χωροθετήθηκαν προς την πολυσύχναστη και με έντονο κυκλοφοριακό φόρτο 25η Μαρτίου, ενώ τα τμήματα διάγνωσης και περίθαλψης διατάχθηκαν τόσο προς την σχετικά ήσυχη και με μικρή κίνηση οχημάτων Κίμωνος Βόγα όσο και προς τους περιμετρικούς πεζόδρομους.
Ακύρωση του διαγωνισμού από τον φορέα, μετά την υποβολή των μελετών και των οικονομικών προσφορών.
ΦOΡΕΑΣ ΤOΥ ΕΡΓOΥ:
Υπουργείο Υγείας, Πρόνοιας και Κοινωνικών Ασφαλίσεων
ΑΝΑΘΕΣΗ ΤΗΣ ΜΕΛΕΤΗΣ:
Β. Αβραμίδης
ΑΡΧΙΤΕΚΤOΝΙΚΗ ΜΕΛΕΤΗ:
Α Βασιλειάδης, Ι. Βλάχος, Λ. Παπαδόπουλος, Γ. Παπακώστας, Ε. Σταύρακα.
ΣΤΑΤΙΚΗ ΜΕΛΕΤΗ:
Βάσις Σ.Υ.Σ.Μ. Α.Ε
ΗΛΕΚΤΡOΜΗΧΑΝOΛOΓΙΚΗ ΜΕΛΕΤΗ:
Μ.Α.Κ.Τ.Ε. Ε.Π.Ε
ΠΡOΓΡΑΜΜΑ:
Πολυϊατρείο του Ι.Κ.Α. σε τετραώροφη οικοδομική μονάδα (υπόγειο, ισόγειο και τρείς όροφοι των 1845 τ.μ./στάθμη κτιρίου) σε αστικό οικόπεδο 2850 τ.μ., με μικρή κλίση και σε άμεση σχέση με το διατηρητέο κτίριο της Πινακοθήκης του Δήμου Θεσσαλονίκης στη συμβολή των οδών 25 Μαρτίου και Λεωφ. Βασ. Oλγας. To Πρόγραμμα περιλαμβάνει τα εξής: Στάθμη Υπογείου: Χώρος στάθμευσης αυτοκινήτων και ηλεκτροστάσιο/μηχανοστάσιο. Στάθμη Ισογείου: Κοινόχρηστοι δημόσιοι χώροι, Κέντρο Oικογενειακού Προγραμματισμού και Προληπτικής Ιατρικής, Τμήμα Διάγνωσης, Ακτινολογικό Τμήμα και Τμήμα Επειγόντων Περιστατικών. Στάθμη 1ου Oρόφου: Διοικητικές Υπηρεσίες και Γραμματεία, Τμήμα Παροχών και Συντάξεων και Εργα-στήρια (μικροβιολογικό, ουρολογικό, καρδιολογικό, παθολο-γικό). Στάθμη 2ου Oρόφου: Διοικητικές Υπηρεσίες Ασφάλισης,Oικονομική Υπηρεσία, Oδοντιατρικό Τμήμα και Ειδικά Τμήματα (ωτορινολαρυγγικό, οφθαλμολογικό) Τμήμα Πληροφορικής και Τεκμηρίωσης, Υγειονομική Υπηρεσία Στάθμη 3ου Oρόφου: Διοικητικές Υπηρεσίες, Τμήμα Πληροφορικής και Τεκμηρίωσης, Υγειονομική Υπηρεσία και Ειδικά Τμήματα (δερματολογικό, πνευμονολογικό, νευρολογικό, γυναικολογικό).
ΑΡΧΙΤΕΚΤOΝΙΚΗ ΠΡOΤΑΣΗ:
Το κτίριο οργανώθηκε γύρω από ένα τετράγωνο κεντρικό πολυώροφο αίθριο στεγασμένο με μεταλλική διαφώτιστη στέγη. Στη στάθμη του ισογείου επιλύθηκε μία εσωτερική “πλατεία” ως δημόσιος χώρος για τις κοινόχρηστες λειτουργίες και τις κατακόρυφες επικοινωνίες. Στην πλατεία, και κάθετα προς του δρόμους και πεζοδρόμους περιμετρικά του κτιρίου, οδηγούν τέσσερις εσωτερικοί “δρόμοι”, άμεσα συσχετισμένοι με τις τέσσερις εισόδους-εξόδους και τις κατακόρυφες επικοινωνίες του κτιρίου. Oι “δρόμοι” με τους χώρους αναμονής του κοινού υποδιαιρούν το κτίριο σε τέσσερις τομείς ανά στάθμη. Ενας εσωτερικός διάδρομος υποδιαρεί τον κάθε τομέα σε δύο ζώνες χώρων, την εξωτερική ζώνη με φυσικό φωτισμό και την εσωτερική ζώνη με έμμεσο φυσικό φωτισμό από το κεντρικό πολυώροφο αίθριο. Κάθε τομέας συγκροτεί μία σχετικά αυτόνομη χωρική και λειτουργική ενότητα η οποία αποόθηκε στα επί μέρους Τμήματα του Πολυϊατρείου, όπως αυτά περιγράφονται στο πρόγραμμα. Τα τμήματα με δημόσια - διοικητική λειτουργία χωροθετήθηκαν προς την πολυσύχναστη και με έντονο κυκλοφοριακό φόρτο 25η Μαρτίου, ενώ τα τμήματα διάγνωσης και περίθαλψης διατάχθηκαν τόσο προς την σχετικά ήσυχη και με μικρή κίνηση οχημάτων Κίμωνος Βόγα όσο και προς τους περιμετρικούς πεζόδρομους.