Επανασχεδιασμός του Περιπτέρου 1 της HELEXPO-Δ.Ε.Θ.
μελέτη σκοπιμότητος και αρχιτεκτονική προμελέτη
ΦOΡΕΑΣ ΤOΥ ΕΡΓOΥ:
Διεθνής Έκθεση Θεσσαλονίκης
ΑΡΧΙΤΕΚΤOΝΙΚΗ ΜΕΛΕΤΗ:
Γιώργος Κύρου και Γιάννης Βλάχος, Λόης Παπαδόπουλος, Γιώργος Παπακώστας
ΠΡOΓΡΑΜΜΑ:
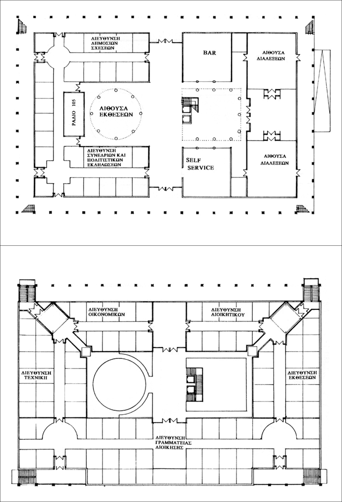
Μεταφορά των γραφείων Διοίκησης της HELEXPO-Δ.Ε.Θ. στο περίπτερο 1. Διερεύνηση της δυνατότητας του περιπτέρου 1 να στεγάσει λειτουργίες συμπληρωματικές προς τις λειτουργίες της Διοίκησης όπως μεταξύ άλλων, δραστηριότητες και εκδηλώσεις των φορέων του δικτύου προώθησης της ελληνικής παραγωγής. Διαμόρφωση του μετώπου της HELEXPO-Δ.Ε.Θ. προς την οδό Εγνατία. Επιπλέον αποκατάσταση του στατικού φορέα και το μεγάλο βάθος του κτιρίου (67μ.) το οποίο περιορίζει σημαντικά τις δυνατότητες άμεσου φυσικού φωτισμού των γραφείων διοίκησης.
ΑΡΧΙΤΕΚΤOΝΙΚΗ ΠΡOΤΑΣΗ:
Προτείνονται εναλλακτικά δύο προτάσεις οι οποίες αντιστοιχούν σε δύο διαφορετικές αντιλήψεις της οργάνωσης των κτιρίων γραφείων: “η ανοικτή κάτοψη” και “η ιεραρχημένη κάτοψη” Πρόταση 1 “η ανοικτή κάτοψη”: Κεντρικό στοιχείο της αρχιτεκτονικής σύνθεσης είναι το διώροφο αίθριο με διαφώτιστη οροφή γύρω από το οποίο διατάσσονται ελεύθερα χώροι με απλό και διπλό ύψος σε αντιστοιχία με τον φυσικό φωτισμό από την οροφή. Στη στάθμη του ισογείου διατάσσονται οι χώροι πολλαπλών χρήσεων για συνεδριακές εκδηλώσεις μικρής κλίμακας (τέσσερις αίθουσες συνεδριάσεων των 100 θέσεων με δυνατότητα συνένωσής τους, ένα συνεδριακό αμφιθέατρο των 200 θέσεων, εστιατόριο, δύο κυλικεία, χώρος εκθέσεων, περίπτερο εκθέσεων, βοηθητικοί χώροι) ενώ στη στάθμη του ορόφου διατάσσονται ενιαίοι και σε ελεύθερες διατάξεις με χαμηλά έπιπλα και διαχωριστικά πανώ, οι χώροι των Διοικητικών Διευθύνσεων της HELEXPO- Δ.Ε.Θ. Πρόταση 2, “η ιεραρχημένη κάτοψη”: Προτείνεται η ενσωμάτωση του κτιρίου στο ΒΑ τμήμα του υφιστάμενου, ώστε αφενός να ολοκληρωθεί οπτικά η πρισματική γεωμετρία του υφιστάμενου κτιρίου και αφετέρου η δημιουργία των νέων γραφειακών χώρων να μη δεσμεύεται από τον υφιστάμενο πυκνό κατασκευαστικόκάναβο των υποστυλωμάτων. Κεντρικό στοιχείο της αρχιτεκτονικής σύνθεσης είναι δύο εσωτερικά αίθρια 400 τ.μ. με διαφώτιστη οροφή κυκλικής και τετραγωνικής γεωμετρίας (για τον φυσικό φωτισμό των χώρων της Διοίκησης στη στάθμη του ορόφου και την ανάδειξη των δημόσιων λειτουργιών στη στάθμη του ισογείου). Στη στάθμη του ισογείου διατάσσονται οι χώροι των κλαδικών εκθέσεων και των εκδηλώσεων προβολής και δημοσίων σχέσεων, ένα κυλικείο, μία αίθουσα συνεδρίων με δυνατότητα να υποδιαιρεθεί σε τρεις μικρότερες και ραδιοφωνικός σταθμός) ενώ στη στάθμη του ορόφου περιμετρικά των δύο κεντρικών αιθρίωνδιατάσσονται οι αυτόνομοι κλειστοί χώροι των Διοικητικών Διευθύνσεων της HELEXPO- Δ.Ε.Θ.
ΦOΡΕΑΣ ΤOΥ ΕΡΓOΥ:
Διεθνής Έκθεση Θεσσαλονίκης
ΑΡΧΙΤΕΚΤOΝΙΚΗ ΜΕΛΕΤΗ:
Γιώργος Κύρου και Γιάννης Βλάχος, Λόης Παπαδόπουλος, Γιώργος Παπακώστας
ΠΡOΓΡΑΜΜΑ:
Μεταφορά των γραφείων Διοίκησης της HELEXPO-Δ.Ε.Θ. στο περίπτερο 1. Διερεύνηση της δυνατότητας του περιπτέρου 1 να στεγάσει λειτουργίες συμπληρωματικές προς τις λειτουργίες της Διοίκησης όπως μεταξύ άλλων, δραστηριότητες και εκδηλώσεις των φορέων του δικτύου προώθησης της ελληνικής παραγωγής. Διαμόρφωση του μετώπου της HELEXPO-Δ.Ε.Θ. προς την οδό Εγνατία. Επιπλέον αποκατάσταση του στατικού φορέα και το μεγάλο βάθος του κτιρίου (67μ.) το οποίο περιορίζει σημαντικά τις δυνατότητες άμεσου φυσικού φωτισμού των γραφείων διοίκησης.
ΑΡΧΙΤΕΚΤOΝΙΚΗ ΠΡOΤΑΣΗ:
Προτείνονται εναλλακτικά δύο προτάσεις οι οποίες αντιστοιχούν σε δύο διαφορετικές αντιλήψεις της οργάνωσης των κτιρίων γραφείων: “η ανοικτή κάτοψη” και “η ιεραρχημένη κάτοψη” Πρόταση 1 “η ανοικτή κάτοψη”: Κεντρικό στοιχείο της αρχιτεκτονικής σύνθεσης είναι το διώροφο αίθριο με διαφώτιστη οροφή γύρω από το οποίο διατάσσονται ελεύθερα χώροι με απλό και διπλό ύψος σε αντιστοιχία με τον φυσικό φωτισμό από την οροφή. Στη στάθμη του ισογείου διατάσσονται οι χώροι πολλαπλών χρήσεων για συνεδριακές εκδηλώσεις μικρής κλίμακας (τέσσερις αίθουσες συνεδριάσεων των 100 θέσεων με δυνατότητα συνένωσής τους, ένα συνεδριακό αμφιθέατρο των 200 θέσεων, εστιατόριο, δύο κυλικεία, χώρος εκθέσεων, περίπτερο εκθέσεων, βοηθητικοί χώροι) ενώ στη στάθμη του ορόφου διατάσσονται ενιαίοι και σε ελεύθερες διατάξεις με χαμηλά έπιπλα και διαχωριστικά πανώ, οι χώροι των Διοικητικών Διευθύνσεων της HELEXPO- Δ.Ε.Θ. Πρόταση 2, “η ιεραρχημένη κάτοψη”: Προτείνεται η ενσωμάτωση του κτιρίου στο ΒΑ τμήμα του υφιστάμενου, ώστε αφενός να ολοκληρωθεί οπτικά η πρισματική γεωμετρία του υφιστάμενου κτιρίου και αφετέρου η δημιουργία των νέων γραφειακών χώρων να μη δεσμεύεται από τον υφιστάμενο πυκνό κατασκευαστικόκάναβο των υποστυλωμάτων. Κεντρικό στοιχείο της αρχιτεκτονικής σύνθεσης είναι δύο εσωτερικά αίθρια 400 τ.μ. με διαφώτιστη οροφή κυκλικής και τετραγωνικής γεωμετρίας (για τον φυσικό φωτισμό των χώρων της Διοίκησης στη στάθμη του ορόφου και την ανάδειξη των δημόσιων λειτουργιών στη στάθμη του ισογείου). Στη στάθμη του ισογείου διατάσσονται οι χώροι των κλαδικών εκθέσεων και των εκδηλώσεων προβολής και δημοσίων σχέσεων, ένα κυλικείο, μία αίθουσα συνεδρίων με δυνατότητα να υποδιαιρεθεί σε τρεις μικρότερες και ραδιοφωνικός σταθμός) ενώ στη στάθμη του ορόφου περιμετρικά των δύο κεντρικών αιθρίωνδιατάσσονται οι αυτόνομοι κλειστοί χώροι των Διοικητικών Διευθύνσεων της HELEXPO- Δ.Ε.Θ.