Μελέτες Αστικών Πολυκατοικιών Θεσσαλονίκης
ΑΡΧΙΤΕΚΤOΝΙΚΕΣ ΜΕΛΕΤΕΣ:
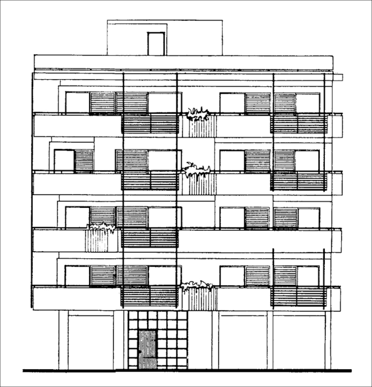
Μ. Νομικός, Λόης Παπαδόπουλος, Γιώργος Παπακώστας
ΑΡΧΙΤΕΚΤOΝΙΚΗ ΠΡOΤΑΣΗ:
Στις λίγες περιπτώσεις μελέτης αστικών πολυκατοικιών επιδιώχθηκε, χωρίς πάντα να έχει επιτευχθεί, η διαφοροποίηση από τη συνήθη εικόνα της συνοικιακής πολυκατοικίας (οικοδομή Δ. Σφενδόνη, Αντιγόνης 14, Βυζάντιο, οικοδομή Γ. Κυριακίδου, Κονίτσης 199, Α. Τούμπα).
Μ. Νομικός, Λόης Παπαδόπουλος, Γιώργος Παπακώστας
ΑΡΧΙΤΕΚΤOΝΙΚΗ ΠΡOΤΑΣΗ:
Στις λίγες περιπτώσεις μελέτης αστικών πολυκατοικιών επιδιώχθηκε, χωρίς πάντα να έχει επιτευχθεί, η διαφοροποίηση από τη συνήθη εικόνα της συνοικιακής πολυκατοικίας (οικοδομή Δ. Σφενδόνη, Αντιγόνης 14, Βυζάντιο, οικοδομή Γ. Κυριακίδου, Κονίτσης 199, Α. Τούμπα).